| Lokalizacja: | działka inwestora w woj. łódzkim |
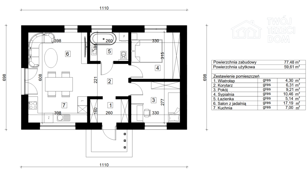
| Powierzchnia domu: | 59,61 m2 |
| Ilość pokoi: | 3 |
| Cena SSO: | Od 177 450 zł |
| Cena SSZ: | Od 203 000 zł |
| Cena Stan Deweloperski: | Od 339 000 zł |
Autorski projekt Twój Trzeci Dom! Nowoczesny minimalizm w praktyce – przemyślane wykorzystanie każdego metra, przy zachowaniu maksimum funkcjonalności!
Szukasz idealnego miejsca do życia, które możesz dopasować do Twoich potrzeb? Ten projekt jest stworzony właśnie dla Ciebie. Prezentujemy projekt domu, który możemy zrealizować w dogodnej dla Ciebie lokalizacji. Zapewniamy pełną elastyczność i możliwość dostosowania projektu do Ciebie, abyś wchodząc do środka mógł powiedzieć „Tak, to jest mój dom”.
Ten kompaktowy, funkcjonalny dom to idealne rozwiązanie dla singla, pary lub małej rodziny. Projekt zapewnia komfort i przestrzeń, której potrzebujesz.
- Salon z aneksem kuchennym i jadalnią: To serce domu, idealne do wspólnego spędzania czasu.
- Dwa pokoje: Mogą pełnić funkcję sypialni, pokoju dla dziecka, biura lub pracowni. Twój pomysł – nasza realizacja!
- Łazienka z WC: Praktyczna i ustawna.
Co wchodzi w skład oferty?
Każdy dom budujemy z najwyższej jakości materiałów, aby zapewnić trwałość i bezpieczeństwo na lata.
- Fundament: monolityczna płyta fundamentowa- najlepsze obecnie rozwiązanie na rynku, doskonała izolacja termiczna oraz świetna wytrzymałość.
- Ściany: Wybudowane technologią tradycyjną z solidnego betonu komórkowego H+H -paroprzepuszczalny materiał o świetnych właściwościach izolacyjnych i wytrzymałości na ściskanie.
- Strop: KVH
- Dach: Konstrukcja dachu pokryta blachodachówką Tigra Mat renomowanego producenta Pruszyński – 35 lat gwarancji!
- Drzwi i okna: Wysokiej jakości drzwi zewnętrzne firmy Gerda bądź Wikęd, wytrzymałe okna trzyszybowe PCV.
- Instalacje: Wykonujemy pełną instalację wodno-kanalizacyjną, elektryczną oraz ogrzewania podłogowego.
- Wentylacja i klimatyzacja: Możemy zapewnić instalację rekuperacji i klimatyzacji, która gwarantuje komfort przez cały rok.
- Wykończenia: tynki gipsowe, wylewki cementowe, sufity podwieszane, izolacja stropu wełną 30 cm, elewacja „na gotowo” – izolacja domu z zewnątrz styropianem fasadowym 20 cm, zbrojenie siatką i klejem, położenie tynku silikonowego w kolorze białym.
- Idylliczny taras (opcjonalnie): idealny do relaksu na łonie natury i spędzania wspólnych chwil z rodziną.
Co zyskujesz dodatkowo?
Dodatkowo kupując dom z naszego projektu, otrzymasz GRATIS projekt wnętrz przygotowany przez profesjonalnego projektanta o wartości ok. 10 000 PLN!
Możemy zaoferować również pełne wykończenie wnętrz – z meblami lub bez – w ciągu 40 dni! Współpracujemy z fachowcami, których znamy i którym ufamy, więc możesz być pewien, że wszystko zostanie zrobione na czas i z najwyższą starannością. Chętnie pomożemy Ci też zamontować urządzenia, takie jak pompa ciepła, rekuperator czy klimatyzator, a nawet doradzimy w kwestii ogrodu, jeśli tego potrzebujesz. Jesteśmy tutaj, by ułatwić Ci cały proces – Ty decydujesz, a my zajmujemy się resztą!
Serdecznie polecamy i zapraszamy do kontaktu – To właśnie na taki dom czekaliście!
* Niniejsze ogłoszenie nie jest ofertą handlową w rozumieniu kodeksu cywilnego.
* Przyłącza do indywidualnej wyceny zależne od warunków lokalnych.
Masz Swój projekt? Super! Chętnie go wycenimy > Skorzystaj z bezpłatnej wyceny pod tym linkiem
Przykładowa realizacja (zdjęcia poglądowe)
Na zdjęciach prezentujemy przykładową inwestycję realizowaną z tego projektu. Taki sam dom możemy zbudować także dla Ciebie – w dowolnej lokalizacji!





















