| Lokalizacja: | działka inwestora w woj. łódzkim |
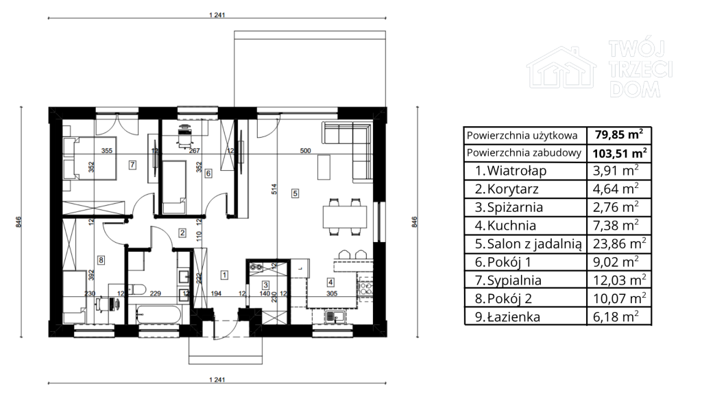
| Powierzchnia domu: | 79,85 m2 |
| Ilość pokoi: | 4 |
| Cena SSO: | od 229 700 zł |
| Cena SSZ: | od 273 400 zł |
| Cena za stan deweloperski: | od 439 000 zł |
Autorski projekt Twój Trzeci Dom! Idealne połączenie rozsądku z komfortem. Stworzony dla tych którzy cenią balans.
Szukasz idealnego miejsca do życia, które możesz dopasować do Twoich potrzeb? Ta oferta jest stworzona właśnie dla Ciebie. Prezentujemy projekt domu, który możemy zrealizować w dogodnej dla Ciebie lokalizacji. Zapewniamy pełną elastyczność i możliwość dostosowania projektu do Ciebie, abyś wchodząc do środka mógł powiedzieć „Tak, to jest mój dom”.
Ten komfortowy, przestronny dom to idealne rozwiązanie dla pary lub rodziny. Projekt zapewnia komfort i przestrzeń, na którą zasługujesz Ty i Twoja rodzina.
- Wygodny salon z aneksem kuchennym i jadalnią: To serce domu, idealne do wspólnego spędzania czasu z rodziną i przyjaciółmi.
- Trzy pokoje: Mogą pełnić funkcję sypialni, pokoju dla dziecka, biura lub pracowni. Twój pomysł – nasza realizacja!
- Łazienka z WC: Wygodna i kompaktowa.
Co wchodzi w skład oferty?
Każdy dom budujemy z najwyższej jakości materiałów, aby zapewnić trwałość i bezpieczeństwo na lata.
- Fundament: monolityczna płyta fundamentowa- najlepsze obecnie rozwiązanie na rynku, doskonała izolacja termiczna oraz świetna wytrzymałość.
- Ściany: Wybudowane technologią tradycyjną z solidnego betonu komórkowego H+H -paroprzepuszczalny materiał o świetnych właściwościach izolacyjnych i wytrzymałości na ściskanie.
- Strop: Wiązary
- Dach: Konstrukcja dachu pokryta blachodachówką Tigra Mat renomowanego producenta Pruszyński – 35 lat gwarancji!
- Drzwi i okna: Wysokiej jakości drzwi zewnętrzne firmy Gerda bądź Wiked, wytrzymałe okna trzyszybowe PCV.
- Instalacje: Wykonujemy pełną instalację wodno-kanalizacyjną, elektryczną oraz ogrzewania podłogowego.
- Wentylacja i klimatyzacja: Możemy zapewnić instalację rekuperacji i klimatyzacji, które gwarantują komfort przez cały rok.
- Wykończenia: tynki gipsowe, wylewki cementowe, sufity podwieszane, izolacja stropu wełną 30 cm, elewacja „na gotowo” – izolacja domu z zewnątrz styropianem fasadowym 20 cm, zbrojenie siatką i klejem, położenie tynku silikonowego w kolorze białym.
- Idylliczny taras(opcjonalnie): idealny do relaksu na łonie natury i spędzania wspólnych chwil z rodziną.
Co zyskujesz dodatkowo?
Dodatkowo kupując dom z naszego projektu, otrzymasz GRATIS projekt wnętrz przygotowany przez profesjonalnego projektanta o wartości ok. 10 000 PLN!
Możemy zaoferować również pełne wykończenie wnętrz – z meblami lub bez – w ciągu 40 dni! Współpracujemy z fachowcami, których znamy i którym ufamy, więc możesz być pewien, że wszystko zostanie zrobione na czas i z najwyższą starannością. Chętnie pomożemy Ci też zamontować urządzenia, takie jak pompa ciepła, rekuperator czy klimatyzator, a nawet doradzimy w kwestii ogrodu, jeśli tego potrzebujesz. Jesteśmy tutaj, by ułatwić Ci cały proces – Ty decydujesz, a my zajmujemy się resztą!
Serdecznie polecamy i zapraszamy do kontaktu – To właśnie na taki dom czekaliście!
* Niniejsze ogłoszenie nie jest ofertą handlową w rozumieniu kodeksu cywilnego.
* Przyłącza do indywidualnej wyceny zależne od warunków lokalnych.
Masz Swój projekt? Żaden problem! Skorzystaj z bezpłatnej wyceny!
Przykładowe wizualizację (różne warianty tego samego projektu)
Taki dom możemy zbudować także dla Ciebie – w dowolnej lokalizacji!
























